欢迎您的到来! 您还不是本站会员,请:注册登录
人气 7891

我的住宅设计 [复制链接]

zhggxgl1 ~ 2008-10-29 02:58:19

我的一层

我的一层

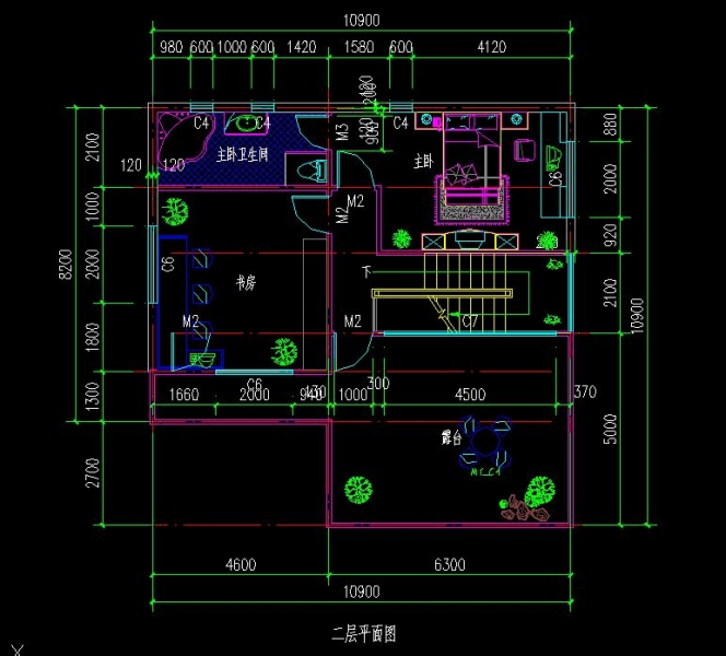
我的二层

我的二层

各位大哥,发表一下意见,小弟不胜感激!!!
二层还没搞完,这是一层简单的模型。
再次请各位大哥大姐发表一下意见!!!谢谢大家!
6.jpg
8.jpg
9.jpg
7.jpg
悠游无欲 ~ 2008-10-30 02:18:49
一些改进建议,敬请参考。
1由于你的平面图上没有指北针暂且理解为上北下南好了(一层平面图上应标出指北针方向)
2尺寸线问题第二道尺寸线标注的应该是轴线尺寸 第三道尺寸线标注的是窗洞尺寸。
3起居室和主卧应朝向南,这涉及到住宅的品质问题。
4住宅内部的楼梯梯段高度比正常的踏步高度要高,这就意味着楼梯做的可以更省空间。图上楼梯占的空间过于浪费。另外楼梯下部的空间应该竟可能的利用上。
5主卧书房应嵌套在一起空间使用上更合理。
6主卧卫生间的布置应该再考虑一下。
zhggxgl1 ~ 2008-10-30 10:52:25
好谢谢,由于是处女作嘛。。。。难免会有好多错误!楼下的继续啊,设计得不好,想骂就骂吧!最怕你们不骂了~
ANT ~ 2008-10-30 16:18:57
原帖由 zhggxgl1 于 2008-10-30 18:52 发表
好谢谢,由于是处女作嘛。。。。难免会有好多错误!楼下的继续啊,设计得不好,想骂就骂吧!最怕你们不骂了~


楼主的态度很阿Q!悠游看的很仔细也很认真的回帖,甚至指出你的制图上的问题(尺寸线标注),你真的应该好好感谢下悠游。
天明 ~ 2008-10-31 12:11:12
个人感觉餐厅空间和交通空间挨着,不是很好,可以用矮墙等隔离空间。
一平要有环境啊。

[ 本帖最后由 天明 于 2008-10-31 20:12 编辑 ]
和和 ~ 2008-11-4 08:34:11
LZ你的厨房在哪里呀?
和和 ~ 2008-11-4 08:38:08
LZ你的厨房在哪里呀?
zhggxgl1 ~ 2008-11-11 10:48:42

啊!?

竟然没看到厨房吗?
JAY何 ~ 2008-11-17 01:50:20
嗯!!处女作就这么好了 不错哦!!~~
您需要登录后才可以回帖 登录 | 加入蚂蚁

本版积分规则

站长推荐

上帝视角,日本军事基地探秘

海上自卫队(主要港口与航空基地) 横须贺基地(神奈川县): 虽然主要是美军第七舰队母港,但也是海上自卫 ...

贝壳书屋|可变的城市微型公共空间

祥云小镇拥有成熟的社区商业基底与常态化公共艺术布局,场地人流密集、活动多元,是周边居民日常活动与 ...

代官山樱花树下米其林甜品店

东京代官山的DOLCE TACUBO甜品店,是由Tadokoro Architects设计。建筑主体延伸出一个木质框架,营造了悬 ...

木屋酒店

木屋酒店坐落于贵州大山深处的深度贫困村——团结村,是当地企业在政府扶贫政策引导下,依托农业旅游助力 ...

博阿里奥广场(Foro Boario)城市更新项目

项目概况 项目位于意大利佛罗伦萨省圣洛伦佐堡,依托国家复苏与韧性计划(PNRR)资金落地,是聚焦边 ...

1 2 3 4 5

QQ|Archiver|手机版|建筑蚂蚁 ( 陕ICP备19013355号 )

GMT, 2026-5-4 , Processed in 0.118018 second(s), 27 queries .

Powered by Discuz! X3.5

© 2001-2026 Discuz! Team.

快速回复 返回顶部 返回列表